Obra Construida, 2024 / Funes, Santa Fe, Argentina.






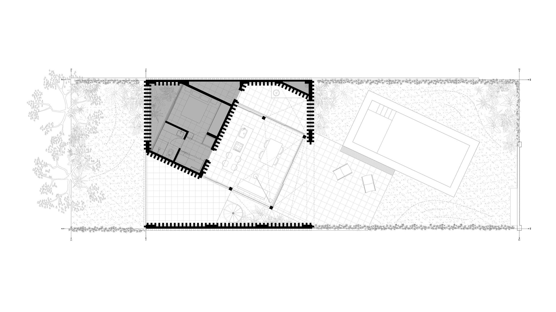
La Taba es un proyecto que indaga la tensión entre intimidad y apertura que está presente en cualquier vivienda de fin de semana. La propuesta, que se concentra sobre el retiro reglamentario del lote para liberar el terreno hacia el fondo, está definida principalmente por un volumen prismático sin tapa. Éste está materializado en muros de ladrillo cribado, definidos a partir de un módulo que puede ser tanto abierto como cerrado para responder a las necesidades estructurales, programáticas, climáticas y espaciales de su interior.
El prisma se pliega parcialmente para alojar en su interior el sector de mayor intimidad de la vivienda. Dicho pliegue describe un camino introspectivo que se cierra sobre sí mismo para contener el núcleo privado del programa. El núcleo está rotado 25 grados con respecto a la calle para optimizar orientaciones, definir patios y posibilitar visuales cruzadas. Su programa es el mínimo necesario para disfrutar de un terreno en la periferia de la ciudad de Rosario.


Como invitando a recorrerla, la fachada presenta el primer pliegue, el cual determina la cochera y el acceso a la casa; desde allí la caja inicial se vuelve permeable a la mirada anticipando el verde del fondo del lote. El segundo pliegue define el espacio social hacia un lado y los espacios íntimos y servicios del otro: un distribuidor, una habitación que se abre a su propio patio, el baño y el depósito. El tercer pliegue organiza la zona del parrillero de forma tal que pueda ser integrado al espacio social de la casa.






El resultado es una caja menor, contenida por la caja mayor de muro cribado y rotada con respecto a esta. La caja mayor es la encargada de garantizar privacidad y seguridad, permitiendo ventilación corrida en todo el interior de la misma. La última operación efectuada, un quiebre en la losa de hormigón, jerarquiza el estar-comedor y ofrece una terraza accesible que a su vez contempla una posible ampliación que no altere el volumen. La contrafachada se abre de manera análoga al frente de la casa. Desde ese hueco se proyecta una explanada que toma la diagonal del interior y ubica la pileta de forma tal que se puedan aprovechar al máximo los espacios verdes resultantes










ESTUDIO QO + TAF
Anteproyecto, proyecto y dirección
Colaboradores
Proyecto y dirección
Arq. Emilio Farias
Arq. Santiago Ghione
Anteproyecto
Arq. Salvador Ferreyra
Arq. Franco Pozzi
Programa
Vivienda unifamiliar
Superficie
100 m2
Ubicación
Funes, Santa Fe, Argentina.
Año de proyecto
2020
Año de ejecución
2021 – 2024
Fotos
Javier Agustin Rojas y Parana Studio